Hiša 105/2
Izračun
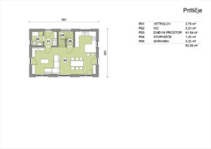
Cene in izrisi hiš so informativnega značaja. Končna cena in tlorisi se oblikujejo na podlagi individualnega dogovora s stranko.
Osnovni konstrukcijski sistem za gradnjo lesenih montažnih skoraj nič-energijskih hiš. Ponuja odlično izkoriščenost prostora in dobro izolativnost.
Konstrukcijski sistem Standard sestavlja osnovna nosilna konstrukcija, izolirana s 140 mm fasadne izolacije. Vse zunanje in notranje stene Rihter imajo nosilno konstrukcijo obojestransko oploščeno z nosilnimi ploščami. S tem se močno poveča potresna stabilnost konstrukcije. Pri obojestranski oblogi nosilne konstrukcije zagotovimo večjo stabilnost in togost vaše montažne hiše v primeru potresa.
Tehnični podatki
- Mavčno kartonska ognjevarna plošča (GKF): 12,5 mm
- Mavčno vlaknena plošča: 15 mm
- Parna zapora: 0,2 mm
- Toplotna in zvočna izolacija (kamena volna, λ = 0,038 W/m2K) med nosilno konstrukcijo: 120 mm
- Lesena nosilna konstrukcija: 120 mm
- Mavčno vlaknena plošča: 15 mm
- Toplotna in zvočna izolacija (stiropor EPS λ = 0,039 W/m2K): 140 mm
- Armirna malta in mrežica: 4 mm
- Končni sloj fasade: 2 mm
DEBELINA: 313 mm
TOPLOTNA PREVODNOST: 0,15 W/(m2K)
ZVOČNA IZOLATIVNOST: Rw ≥ 45 dB
POŽARNA ODPORNOST: REI 60 min
FAZNI ZAMIK: +8 h
Sistem Standard+ je nadgradnja sistema Standard s še večjo stopnjo toplotne izolativnosti in udobja bivanja. Statično izredno stabilen sistem, ki poleg potresne varnosti zagotavlja tudi odlično požarno in zvočno zaščito ter prijetno bivanje v leseni montažni hiši.
Oglejte si montažne hiše Rihter s konstrukcijskim sistemom Standard+
Tehnični podatki
- Mavčno kartonska ognjevarna plošča (GKF): 12,5 mm
- Mavčno vlaknena plošča: 15 mm
- Parna zapora: 0,2 mm
- Toplotna in zvočna izolacija (kamena volna, λ = 0,038 W/m2K) med nosilno konstrukcijo: 160 mm
- Lesena nosilna konstrukcija: 160 mm
- Mavčno vlaknena plošča: 15 mm
- Toplotna in zvočna izolacija (stiropor EPS z izboljšano toplotno izolativnostjo λ = 0,032 W/m2K): 140 mm
- Armirna malta in mrežica: 4 mm
- Končni sloj fasade: 2 mm
DEBELINA: 353 mm
TOPLOTNA PREVODNOST: 0,12 W/(m2K)
ZVOČNA IZOLATIVNOST: Rw ≥ 45 dB
POŽARNA ODPORNOST: REI 60 min
FAZNI ZAMIK: +8 h
Omogoča gradnjo difuzijsko odprtega sistema, ki skupaj z visokoizolativnimi materiali zagotavljajo najvišjo stopnjo energijske učinkovitosti montažnih hiš in udobja bivanja.
Nosilna konstrukcija je obojestransko oploščena z nosilnimi ploščami, s katerimi zagotovimo večjo stabilnost, posebna izvedba inštalacijske ravnine pa preprečuje pokanje na spojih med vogali.
Inštalacijska ravnina 60 mm je namenjena tudi razvodu inštalacij brez poseganja v zrakotesni ovoj montažne hiše.
Zaradi vgrajene kamene volne v skupni debelini 310 mm je pri tem sistemu zelo dobra zvočna in požarna varnost.
Ta sistem priporočamo vsem, saj predstavlja najboljše razmerje med kakovostjo in ceno.
Tehnični podatki
- Mavčno kartonska ognjevarna plošča (GKF): 15 mm
- Lesene letve inštalacijske ravnine: 60 mm
- Toplotna in zvočna izolacija (kamena volna, λ = 0,038 W/m2K) v inštalacijski ravnini: 50 mm
- OSB plošča s polepljenimi stiki: 15 mm
- Toplotna in zvočna izolacija (kamena volna, λ = 0,035 W/m2K) med nosilno konstrukcijo: 120 mm
- Lesena nosilna konstrukcija: 120 mm
- Mavčno vlaknena plošča: 15 mm
- Toplotna in zvočna izolacija (kamena volna, lamele λ = 0,040 W/m2K): 140 mm
- Armirna malta in mrežica: 4 mm
- Paropropustni končni sloj fasade: 2 mm
DEBELINA: 375 mm
TOPLOTNA PREVODNOST: 0,12 W/(m2K)
ZVOČNA IZOLATIVNOST: Rw ≥ 49 dB
POŽARNA ODPORNOST: REI 60 min
FAZNI ZAMIK: +10 h
Sistem Optimal+ je nadgradnja sistema Optimal z odebeljeno konstrukcijo zunanjih sten in s povečano debelino toplotne izolacije strehe. S tem sistemom v večini primerov ob upoštevanju pravilne gradnje stavbnega pohištva ter orientiranosti na parceli, dosežemo standard pasivne gradnje. Pri izbiri tega sistema lahko zato pridobite nepovratna sredstva Ekosklada po trenutno veljavnih pogojih.
Tehnični podatki
- Mavčno kartonska ognjevarna plošča (GKF): 15 mm
- Lesene letve inštalacijske ravnine: 60 mm
- Toplotna in zvočna izolacija (kamena volna, λ = 0,038 W/m2K) v inštalacijski ravnini: 50 mm
- OSB plošča s polepljenimi stiki: 15 mm
- Toplotna in zvočna izolacija (kamena volna, λ = 0,035 W/m2K) med nosilno konstrukcijo: 160 mm
- Lesena nosilna konstrukcija: 160 mm
- Mavčno vlaknena plošča: 15 mm
- Toplotna in zvočna izolacija (kamena volna, lamele λ = 0,040 W/m2K): 140 mm
- Armirna malta in mrežica: 4 mm
- Paropropustni končni sloj fasade: 2 mm
DEBELINA: 415 mm
TOPLOTNA PREVODNOST: 0,11 W/(m2K)
ZVOČNA IZOLATIVNOST: Rw ≥ 50 dB
POŽARNA ODPORNOST: REI 60 min
FAZNI ZAMIK: +11 h
Certifikat Passivhaus inštituta potrjuje, da so vse Rihter hiše grajene v tem sistemu, tehnološko dovršene in skladne z najvišjimi energijskimi standardi.
Ta sistem priporočamo vsem, ki si želijo zgraditi kakovostno montažno pasivno hišo s čim nižjimi stroški.

Tehnični podatki
- Mavčno kartonska ognjevarna plošča (GKF): 15 mm
- Lesene letve inštalacijske ravnine: 60 mm
- Toplotna in zvočna izolacija (kamena volna, λ = 0,038 W/m2K) v inštalacijski ravnini: 50 mm
- OSB plošča s polepljenimi stiki: 15 mm
- Toplotna in zvočna izolacija (kamena volna, λ = 0,035 W/m2K) med nosilno konstrukcijo: 160 mm
- Lesena nosilna konstrukcija: 160 mm
- Mavčno vlaknena plošča: 15 mm
- Toplotna in zvočna izolacija (kamena volna, lamele λ = 0,035 W/m2K): 200 mm
- Armirna malta in mrežica: 4 mm
- Paropropustni končni sloj fasade: 2 mm
DEBELINA: 475 mm
TOPLOTNA PREVODNOST: 0,09 W/(m2K)
ZVOČNA IZOLATIVNOST: Rw ≥ 52 dB
POŽARNA ODPORNOST: REI 60 min
FAZNI ZAMIK: +12 h
Popolnoma naraven sistem, z vgrajenimi naravnimi materiali iz lesenih vlaken.
Toplotna izolacija v skupni debelini 380 mm zagotavlja odlično izolativnost, minimalne stroške in zdravo bivanje v leseni montažni hiši.
Inštalacijska ravnina debeline 60 mm je namenjena razvodu inštalacij brez poseganja v zrakotesni ovoj hiše.
Odlična toplotna izolativnost sten, strehe in stropov montažne hiše ter njihova paropropustnost.
Tehnični podatki
- Mavčno kartonska ognjevarna plošča (GKF): 15 mm
- Lesene letve inštalacijske ravnine: 60 mm
- Toplotna in zvočna izolacija (lesena vlakna, λ = 0,038 W/m2K) v inštalacijski ravnini: 40 mm
- OSB plošča s polepljenimi stiki : 15 mm
- Toplotna in zvočna izolacija (lesena vlakna, λ = 0,038 W/m2K) med nosilno konstrukcijo: 220 mm
- Lesena nosilna konstrukcija: 220 mm
- Mavčno vlaknena plošča: 15 mm
- Toplotna in zvočna izolacija (lesena vlakna, λ = 0,038 W/m2K) med podkonstrukcijo: 60 mm
- Lesena podkonstrukcija: 60 mm
- Fasadna lesno vlaknena plošča (λ = 0,046 W/m2K): 60 mm
- Armirna malta in mrežica: 4 mm
- Paropropustni končni sloj fasade: 2 mm
DEBELINA: 453 mm
TOPLOTNA PREVODNOST: 0,11 W/(m2K)
ZVOČNA IZOLATIVNOST: Rw ≥ 51 dB
POŽARNA ODPORNOST: REI 60 min
FAZNI ZAMIK: +16 h