Tlorisi

Stavba ima tri etaže K+P+1 (kletna etaža, pritličje in nadstropje). V kletni etaži se poleg dveh poslovnih prostorov nahajajo shrambe za stanovanja, tehnični prostor, kolesarnica, vhodni prostor z dvigalom in stopniščem ter zunanja pokrita parkirišča. Ostala parkirišča se nahajajo ob objektu in dovozni cesti.

V pritličju in nadstropju se nahajajo stanovanja naslednjih tipov:

garsonjera

dvosobno stanovanje

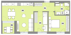
dvo in pol sobno stanovanje

dvosobno invalidsko stanovanje

trosobno stanovanje

štirisobno stanovanje

Pritličje

Stanovanje 01
87,08 m2
Unavailable
Stanovanje 01 - 87,08 m2
Stanovanje 02
45,12 m2
Unavailable
Stanovanje 02 - 45,12 m2
Stanovanje 03
71,77 m2
Unavailable
Stanovanje 03 - 71,77 m2
Stanovanje 04
45,00 m2
Unavailable
Stanovanje 04 - 45,00 m2
Stanovanje 05
86,79 m2
Unavailable
Stanovanje 05 - 86,79 m2
Stanovanje 06
69,5 m2
Unavailable
Stanovanje 06 - 69,5 m2
Stanovanje 07
93,88 m2
Unavailable
Stanovanje 07 - 93,88 m2
Stanovanje 08
94,95 m2
Unavailable
Stanovanje 08 - 94,95 m2
Stanovanje 09
69,98 m2
Unavailable
Stanovanje 09 - 69,98 m2

1. nadstropje

Stanovanje 10
88,11 m2
Unavailable
Stanovanje 10 - 88,11 m2
Stanovanje 11
45,12 m2
Unavailable
Stanovanje 11 - 45,12 m2
Stanovanje 12
72,68 m2
Unavailable
Stanovanje 12 - 72,68 m2
Stanovanje 13
45,30 m2
Unavailable
Stanovanje 13 - 45,30 m2
Stanovanje 14
86,9 m2
Available
Stanovanje 14 - 86,9 m2
Stanovanje 15
68,56 m2
Unavailable
Stanovanje 15 - 68,56 m2
Stanovanje 16
30,39 m2
Unavailable
Stanovanje 16 - 30,39 m2
Stanovanje 17
66,13 m2
Unavailable
Stanovanje 17 - 66,13 m2
Stanovanje 18
65,84 m2
Unavailable
Stanovanje 18 - 65,84 m2
Stanovanje 19
30,41 m2
Unavailable
Stanovanje 19 - 30,41m2
Stanovanje 20
68,37 m2
Unavailable
Stanovanje 20 - 68,37 m2

Vas zanima nakup stanovanja?

Gradnja stanovanjskega bloka Komen na Ljubnem ob Savinji je velika pridobitev za občino Ljubno. Veseli nas, da skupaj ustvarjamo novo, sodobno skupnost, kjer bo kakovost bivanja na prvem mestu. Prepričani so, da bo naselje Komen postalo priljubljen dom za mnoge, ki si želijo živeti v mirnem, naravnem okolju z vsemi prednostmi sodobnega življenja. Povpraševanje po nakupu stanovanj je vsak dan večje, zato si čimprej zagotovite svojega.